 |
 |
 |
| |
|
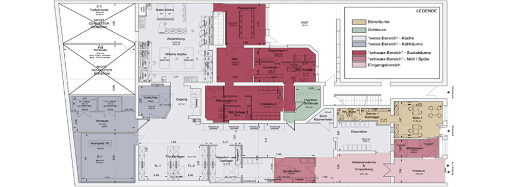
MTD - Planung einer
Großküche in Düsseldorf . Umbau- und Sanierungsplanung
einer ehemaligen Fleischerei zu einer Großküche für
Schulverpflegung und Cateringservices . Gastronomieart: "Cook
& Chill" für bis zu 2.500 Essen täglich .
Bauherr: meal-time Cateringservice, Düsseldorf . Planungsvolumen:
ca. 790m2 BGF . 2.370m3 umbauter Raum . Umbau- und Ausstattungskosten
ca. 290.000€ . Planung 2008 . Leistungsphase 1-3, 5-6 . |
|